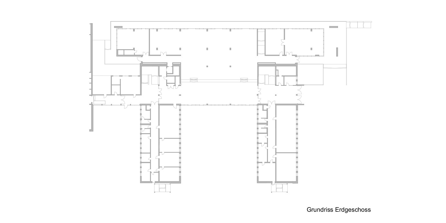
Staatliche Berufsschule FOS BOS Kelheim
Teilabbruch, Umbau und Erweiterung der Staatlichen Berufsschule FOS BOS Kelheim
Leistungsphasen nach HOAI 1–9, Förderantrag, Bestandsaufnahme
34670 m3 umbauter Raum | 8210 m2 Bruttogrundstücksfläche | 6522 m2 Hauptnutzfläche | Ausführungszeitraum: 2011–2014
Besonderheiten: Sanierung im laufenden Betrieb; Arbeitsgemeinschaft mit Dömges Architekten AG
